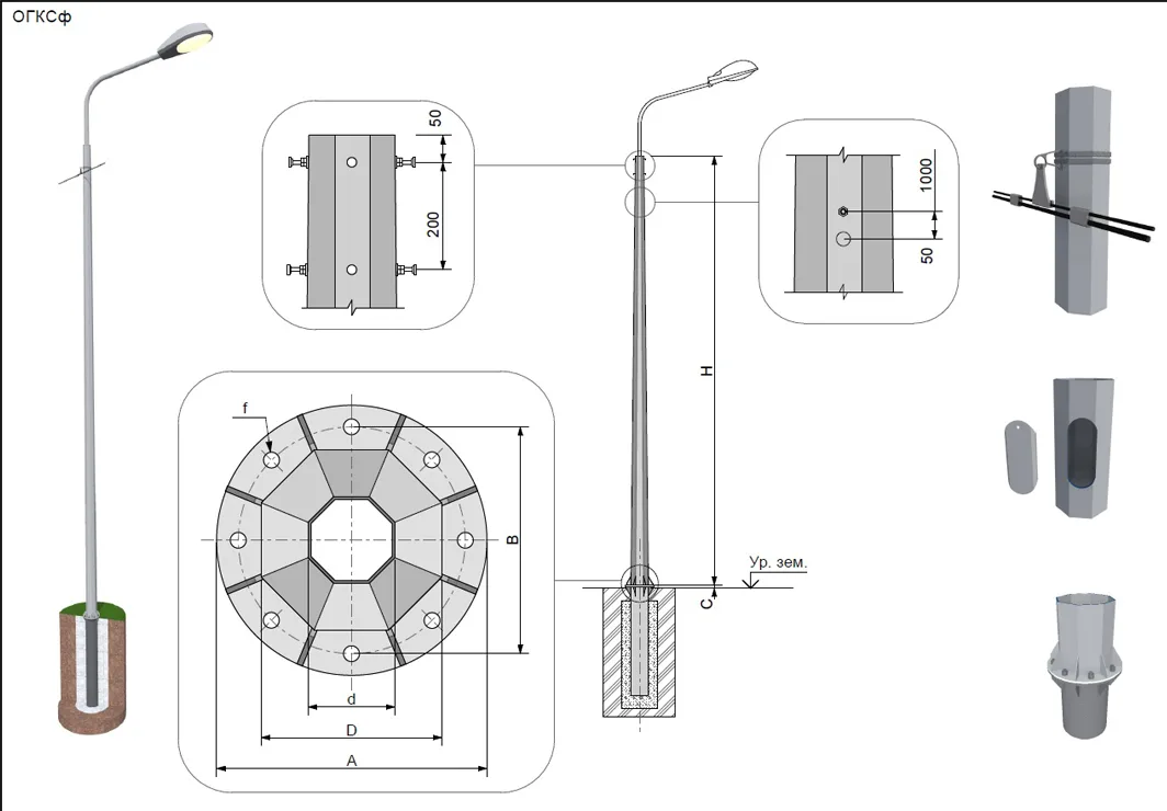
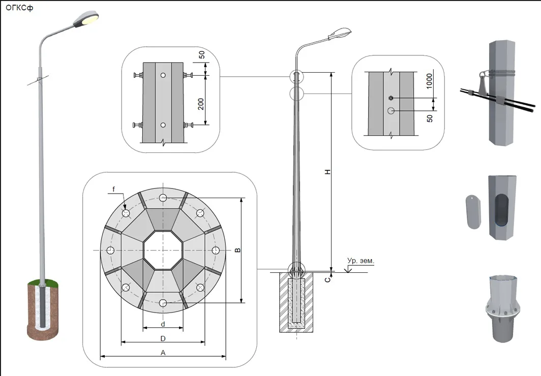
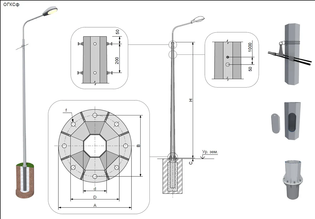
Граненые силовые опоры
Часто ищут
Найдено: 258 товаров
Цена
Производитель
Артикул рекомендуемого ЗДФ
Верхний диаметр, мм
Ветровой район по СП 20.13330.2016
Вид
Выдергивающая нагрузка, кН
Высота надземной части H, м
Высота перегородки, мм
Высота приложения нагрузки
Высота, мм
Гарантия на покраску
Гарантия на цинковое покрытие, лет
Диаметр резьбы, мм
Диаметр, мм
Дополнительная модификация
Допустимое отклонение по оси
Качество/НТД
Кол-во отверстий во фланце
Марка стали
Масса ЗДФ
Масса, кг
Материал
Межосевое расстояние отверстий фланца, мм
Модель
Модификация
Наличие ревизионного лючка
НАТО монтажные отверстия
Нижний диаметр, мм
Подводка кабеля
Подземная часть, м
Подходит для
Производитель
Размер фланца, мм
Рекомендуемый
фундаментный блок
Рекомендуемый артикул крепежа
Серия
Способ монтажа
Срок службы
Страна производства
Тип
Тип короны
Тип монтажа
Тип покрытия
Тип ствола опоры
Толщина металла, мм
Установочное место кронштейна
Форма ствола опоры
Форма фланца
h1, мм
Сбросить все фильтры
Сортировать
По популярности
































Купите опоры силовые по ценам от [prop_min_price} до [prop_max_price]
текст
текст текст текст

