Опоры Сарос
Найдено: 58 товаров
Цена
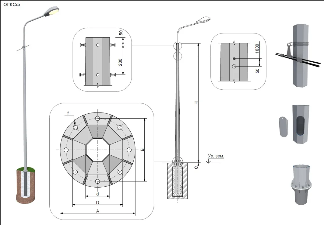
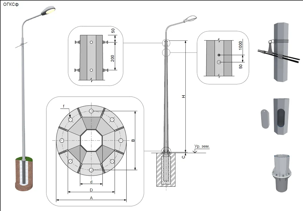
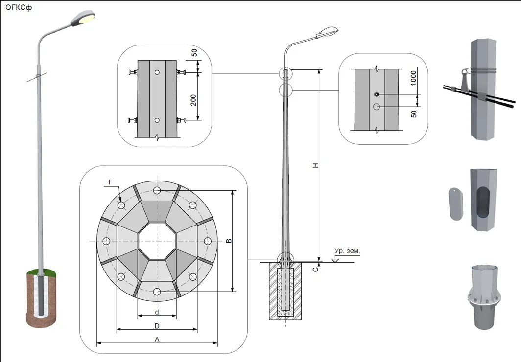
Верхний диаметр, мм
Вид
Высота надземной части H, м
Высота, мм
Гарантия на покраску
Гарантия на цинковое покрытие, лет
Диаметр резьбы, мм
Дополнительная модификация
Качество/НТД
Кол-во отверстий во фланце
Масса, кг
Материал
Межосевое расстояние отверстий фланца, мм
Модификация
Наличие ревизионного лючка
Нижний диаметр, мм
Подвид
Подводка кабеля
Размер фланца, мм
Рекомендуемый
фундаментный блок
Рекомендуемый артикул крепежа
Серия
Способ монтажа
Срок службы
Страна производства
Тип
Тип покрытия
Тип ствола опоры
Установочное место кронштейна
Форма ствола опоры
Сбросить все фильтры
Сортировать
По популярности













