Граненые несиловые опоры
Найдено: 323 товара
Цена
Производитель
Артикул рекомендуемого ЗДФ
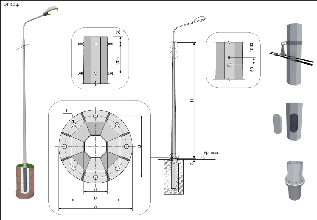
Верхний диаметр, мм
Ветровой район по СП 20.13330.2016
Вид
Высота
Высота надземной части H, м
Высота надставки h, мм
Высота, мм
Выcoтa лючкa В, мм
Гарантия на покраску
Гарантия на цинковое покрытие, лет
Диаметр отверстий фланца, мм
Диаметр резьбы, мм
Диаметр трубы, мм
Диаметр, мм
Длина ЗДФ
Длина овтерстия, мм
Дополнительная модификация
Качество/НТД
Кол-во отверстий во фланце
Количество граней молниеотвода
Марка стали
Масса, кг
Материал
Межосевое расстояние отверстий фланца, мм
Модель
Модификация
Наличие ревизионного лючка
НАТО монтажные отверстия
Нижний диаметр, мм
Подвид
Подводка кабеля
Подземная часть, м
Подходит для
примечание
Производитель
Размер фланца, мм
Рекомендуемый
фундаментный блок
Рекомендуемый артикул крепежа
Серия
Способ монтажа
Срок службы
Страна производства
Тип
Тип монтажа
Тип покрытия
Тип ствола опоры
Толщина металла, мм
Установочное место кронштейна
Форма ствола опоры
Форма фланца
Ширина отверстия, мм
Шиpинa лючкa Г, мм
h1, мм
Kлимaтичecкий paйoн (мaкc.) ГOCT 16З50-80
Сбросить все фильтры
Сортировать
По популярности













