Опоры Амира
Найдено: 328 товаров
Цена
Производитель
Артикул рекомендуемого ЗДФ
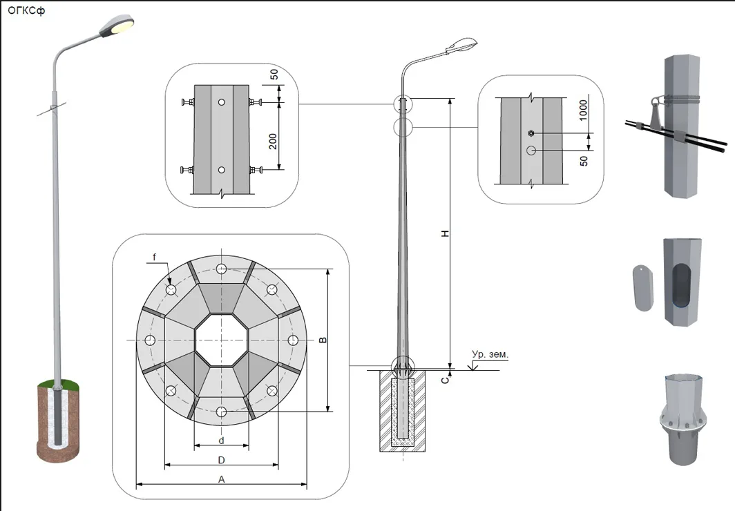
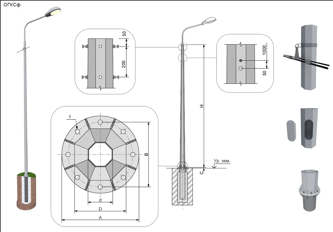
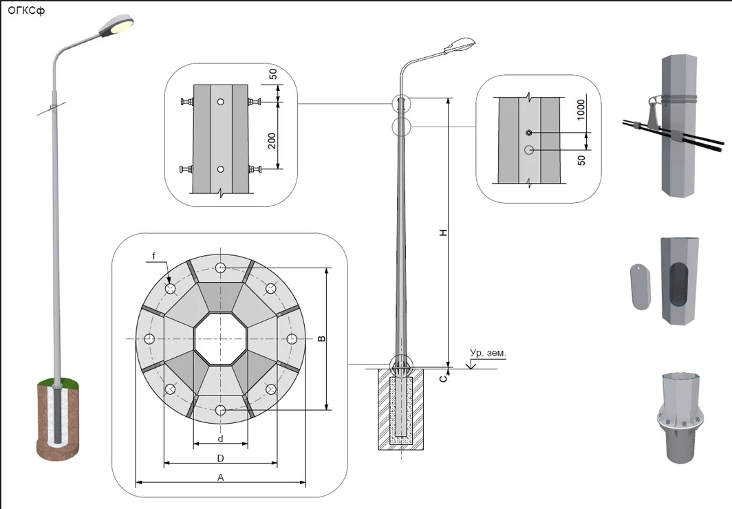
Верхний диаметр, мм
Ветровой район по СП 20.13330.2016
Вид
Выдергивающая нагрузка, кН
Высота надземной части H, м
Высота, мм
Гарантия на покраску
Гарантия на цинковое покрытие, лет
Диаметр резьбы, мм
Диаметры труб D/d, мм
Дополнительная модификация
Качество/НТД
Кол-во отверстий во фланце
Марка стали
Масса, кг
Материал
Межосевое расстояние отверстий фланца, мм
Модификация
Наличие ревизионного лючка
Нижний диаметр, мм
Подвид
Подводка кабеля
Подземная часть, м
Посадочные места
примечание
Производитель
Размер фланца, мм
Рекомендуемый
фундаментный блок
Рекомендуемый артикул крепежа
Серия
Способ монтажа
Срок службы
Страна производства
Тип
Тип монтажа
Тип покрытия
Тип ствола опоры
Толщина металла, мм
Установочное место кронштейна
Форма ствола опоры
Форма фланца
D1, мм
D2, мм
H, мм
h1, мм
Сбросить все фильтры
Сортировать
По популярности













