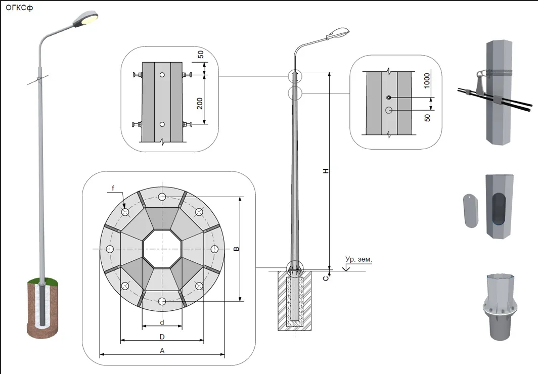
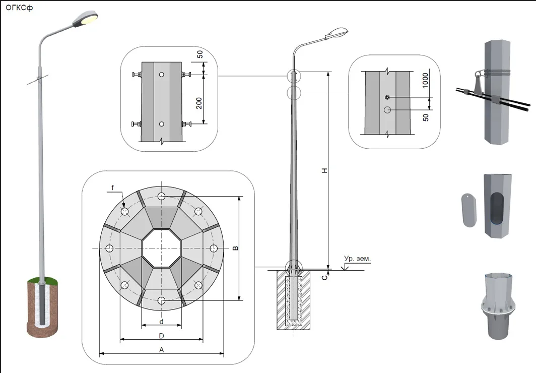
Опоры ОГСГ
Найдено: 22 товара
Цена
Вид
Высота надземной части H, м
Высота, мм
Гарантия на покраску
Гарантия на цинковое покрытие, лет
Дополнительная модификация
Качество/НТД
Масса, кг
Материал
Модификация
Наличие ревизионного лючка
Подводка кабеля
Подземная часть, м
Серия
Способ монтажа
Срок службы
Страна производства
Тип
Тип монтажа
Тип покрытия
Тип ствола опоры
Форма ствола опоры
Сбросить все фильтры
Сортировать
По популярности













