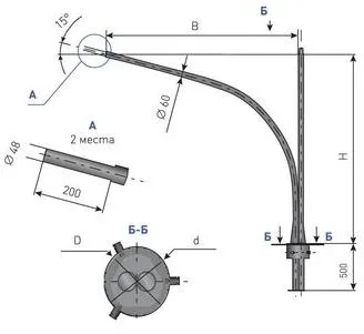
Опора трубчатая несиловая прямостоечная ОП1п-4,0-5,0 гц+по
ОП1п-4,0-5,0 гц+по
Арт: 00-002976
8 715 ₽
8 300 ₽
7 885 ₽
СКИДКА 5%
В наличии
Характеристики
СтатусВ наличии
Все характеристики
1
Под заказ: 2-4 недели
20 лет опыта и качества
Выгода для постоянных клиентов
Доставка во все города РФ
Пункты выдачи в каждом городе РФ
Гарантия
5 лет
Розница отп без выходных
Описание
Расшифровка
Технические характеристики
Инструкции
Доставка
Оплата
Отзывы
У товара пока нет описания




















































