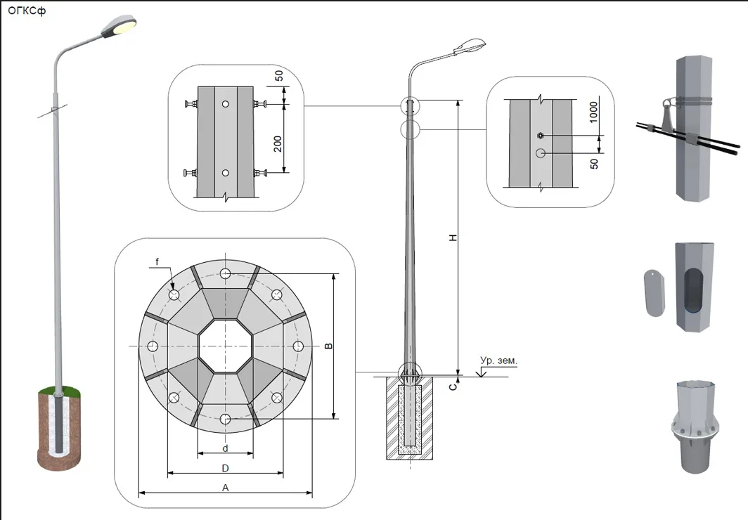
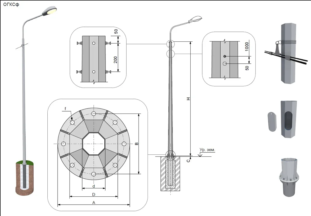
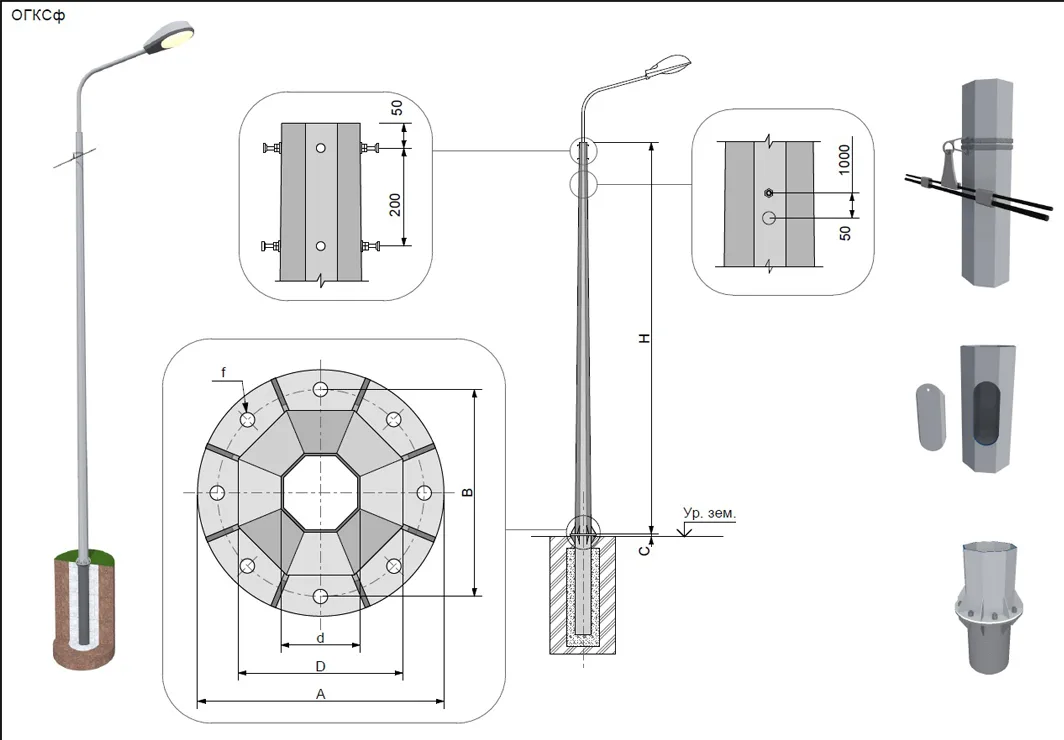
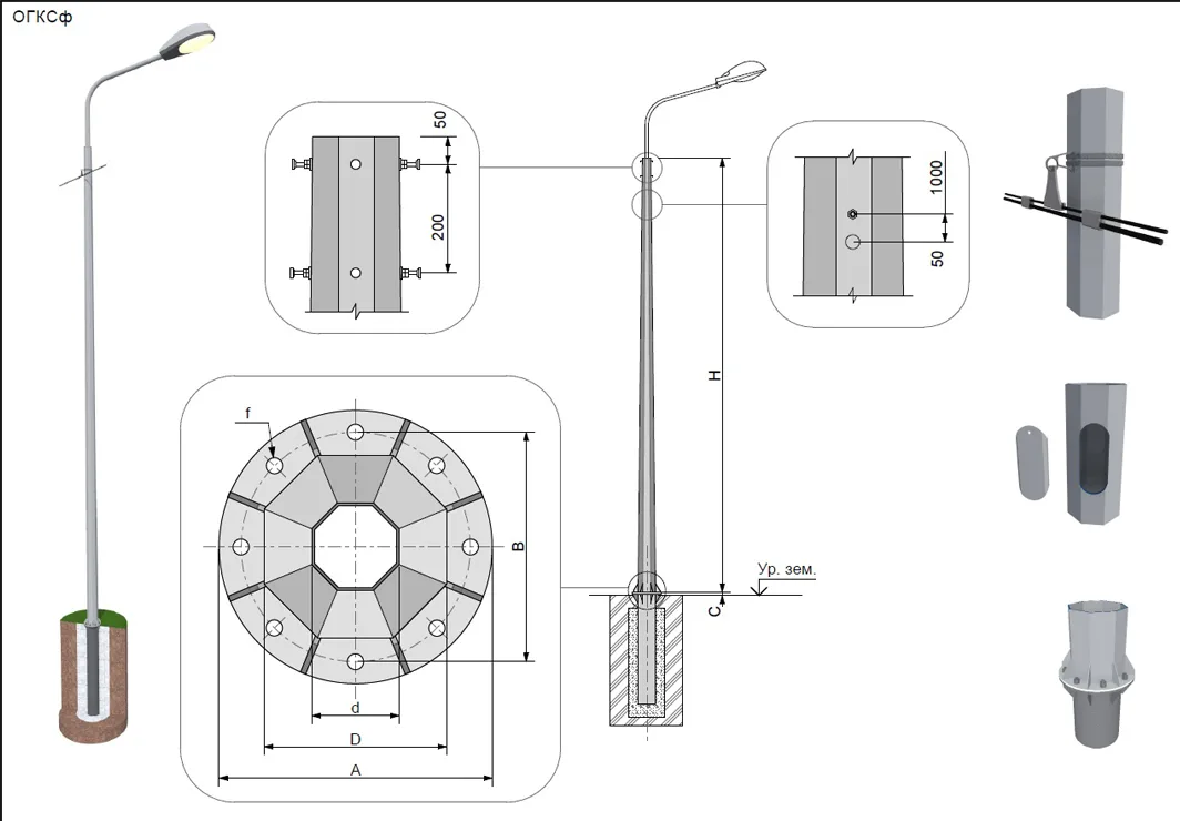
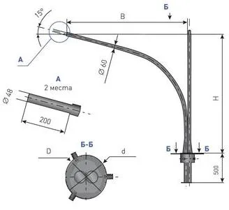
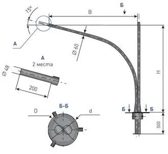
Опора силовая фланцевая ОСф-0,4-10,0 -01
ОСф-0,4-10,0 -01
Арт: 00-003157
31 906 ₽
30 386.67 ₽
28 867.34 ₽
СКИДКА 5%
В наличии
Характеристики
СтатусВ наличии
Все характеристики
1
Под заказ: 4-5 недель
20 лет опыта и качества
Выгода для постоянных клиентов
Доставка во все города РФ
Пункты выдачи в каждом городе РФ
Гарантия
5 лет
Розница отп без выходных
Описание
Расшифровка
Технические характеристики
Инструкции
Доставка
Оплата
Отзывы
У товара пока нет описания




















































