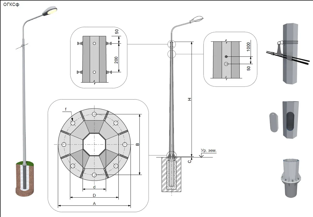
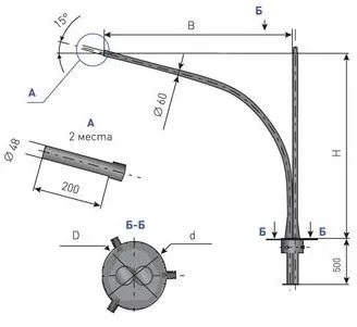
Опора граненая силовая фланцевая ОГСф-0,7-9,0 (90) -02
ОГСф-0,7-9,0 (90) -02
Арт: 00-009778
33 622.75 ₽
32 021.67 ₽
30 420.59 ₽
СКИДКА 5%
В наличии
Характеристики
СтатусВ наличии
Все характеристики
1
Под заказ: 4-5 недель
20 лет опыта и качества
Выгода для постоянных клиентов
Доставка во все города РФ
Пункты выдачи в каждом городе РФ
Гарантия
5 лет
Розница отп без выходных
Описание
Расшифровка
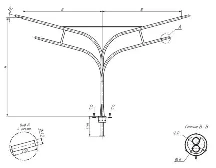
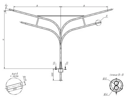
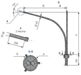
Технические характеристики
Инструкции
Доставка
Оплата
Отзывы
У товара пока нет описания





















































