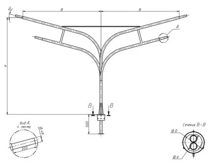
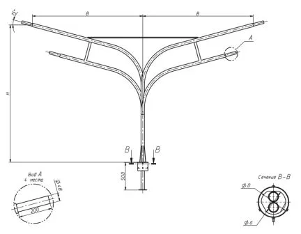
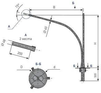
Комплект крепежа для ОСф/ОГСф- 0.7(шпилька)
Комплект крепежа для ОСф/ОГСф- 0.7(шпилька)
Арт: 00-015611
339.15 ₽
323 ₽
306.85 ₽
СКИДКА 5%
В наличии
Характеристики
СтатусВ наличии
Все характеристики
1
Под заказ: 3-5 дней
20 лет опыта и качества
Выгода для постоянных клиентов
Доставка во все города РФ
Пункты выдачи в каждом городе РФ
Гарантия
5 лет
Розница отп без выходных
Описание
Технические характеристики
Инструкции
Доставка
Оплата
Отзывы
У товара пока нет описания



















