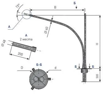
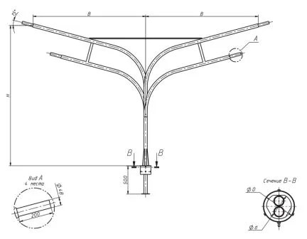
Кронштейн радиусный двухрожковый с кольцом К2К-1,5-2,5-К80-0,048-(15-180) ГЦ+ПО
К2К-1,5-2,5-К80-0,048-(15-180) ГЦ+ПО
Арт: 00-004210
11 622.66 ₽
11 069.20 ₽
10 515.74 ₽
СКИДКА 5%
В наличии
Характеристики
СтатусВ наличии
Все характеристики
1
Под заказ: 2-4 недели
20 лет опыта и качества
Выгода для постоянных клиентов
Доставка во все города РФ
Пункты выдачи в каждом городе РФ
Гарантия
5 лет
Розница отп без выходных
Описание
Расшифровка
Технические характеристики
Инструкции
Доставка
Оплата
Отзывы
У товара пока нет описания





















































