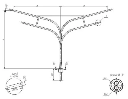
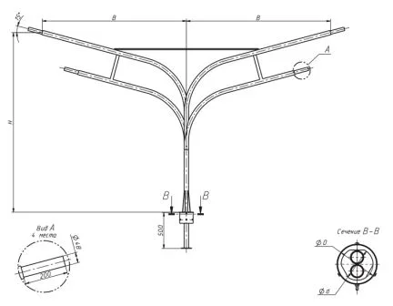
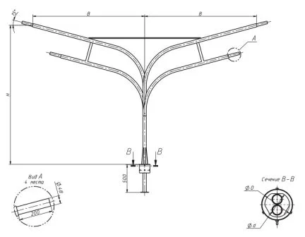
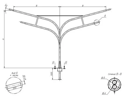
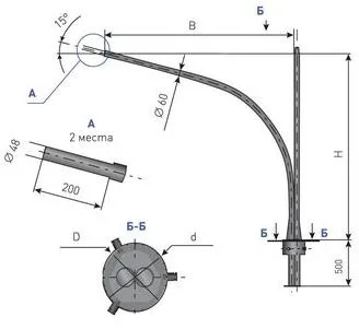
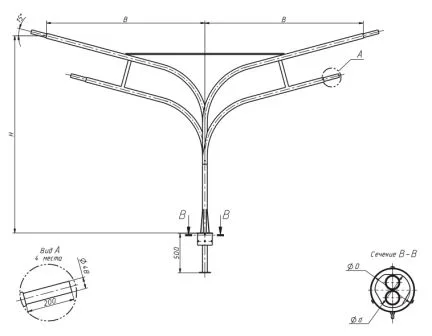
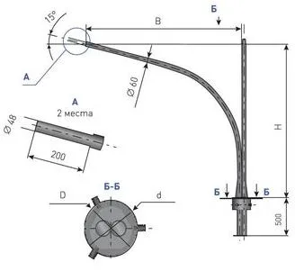
Кронштейн радиусный четырехрожковый с кольцом К4К-0,7-1,0-К110/48-0,048-(0,180) ГЦ+ПО
К4К-0,7-1,0-К110/48-0,048-(0,180) ГЦ+ПО
Арт: 00-004459
17 508.54 ₽
16 674.80 ₽
15 841.06 ₽
СКИДКА 5%
В наличии
Характеристики
СтатусВ наличии
Все характеристики
1
Под заказ: 2-4 недели
20 лет опыта и качества
Выгода для постоянных клиентов
Доставка во все города РФ
Пункты выдачи в каждом городе РФ
Гарантия
5 лет
Розница отп без выходных
Описание
Расшифровка
Технические характеристики
Инструкции
Доставка
Оплата
Отзывы
У товара пока нет описания





















































