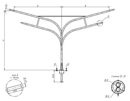
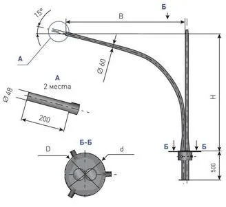
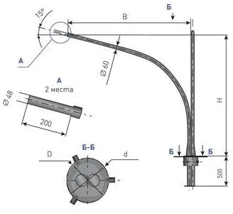
Кронштейн радиусный четырехрожковый с кольцом К4К-1,5-2,0-К110/76-0,048-(0,180) ГЦ+ПО
К4К-1,5-2,0-К110/76-0,048-(0,180) ГЦ+ПО
Арт: 00-004456
18 697.04 ₽
17 806.70 ₽
16 916.37 ₽
СКИДКА 5%
В наличии
Характеристики
СтатусВ наличии
Все характеристики
1
Под заказ: 2-4 недели
20 лет опыта и качества
Выгода для постоянных клиентов
Доставка во все города РФ
Пункты выдачи в каждом городе РФ
Гарантия
5 лет
Розница отп без выходных
Описание
Расшифровка
Технические характеристики
Инструкции
Доставка
Оплата
Отзывы
У товара пока нет описания





















































