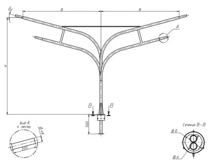
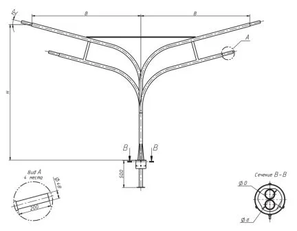
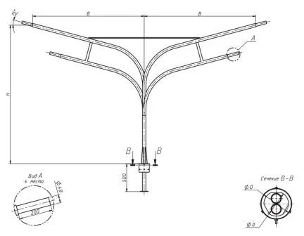
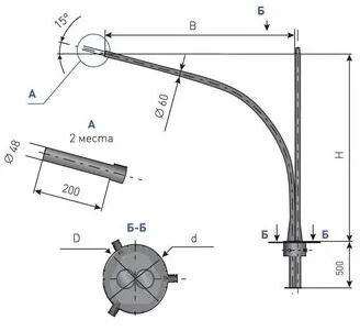
Кронштейн радиусный трехрожковый с кольцом К3К-1,5-1,5-0,145-(0-180)
К3К-1,5-1,5-0,145-(0-180)
Арт:
7 182 ₽
В наличии
Характеристики
СтатусВ наличии
Все характеристики
1
Под заказ: 2-4 недели
20 лет опыта и качества
Выгода для постоянных клиентов
Доставка во все города РФ
Пункты выдачи в каждом городе РФ
Гарантия
5 лет
Розница отп без выходных
Описание
Расшифровка
Технические характеристики
Инструкции
Доставка
Оплата
Отзывы
У товара пока нет описания





















































