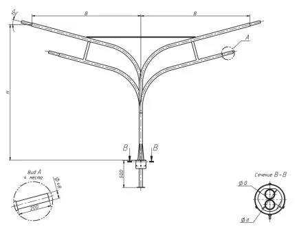
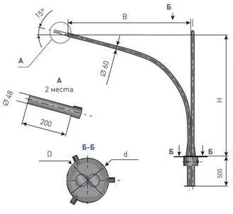
Кронштейн угловой однорожковый с кольцом КГ1К-0,5-0,5-К110/76-0,048 ГЦ+ПО
КГ1К-0,5-0,5-К110/76-0,048 ГЦ+ПО
Арт: 00-004539
1 987.97 ₽
1 893.30 ₽
1 798.63 ₽
СКИДКА 5%
В наличии
Характеристики
СтатусВ наличии
Все характеристики
1
Под заказ: 2-4 недели
20 лет опыта и качества
Выгода для постоянных клиентов
Доставка во все города РФ
Пункты выдачи в каждом городе РФ
Гарантия
5 лет
Розница отп без выходных
Описание
Расшифровка
Технические характеристики
Инструкции
Доставка
Оплата
Отзывы
У товара пока нет описания





















































