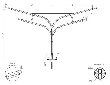
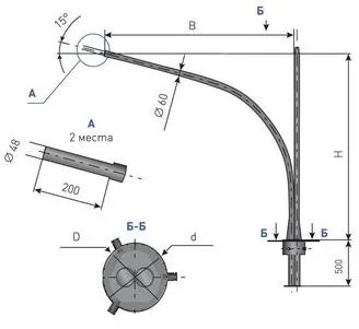
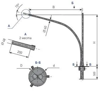
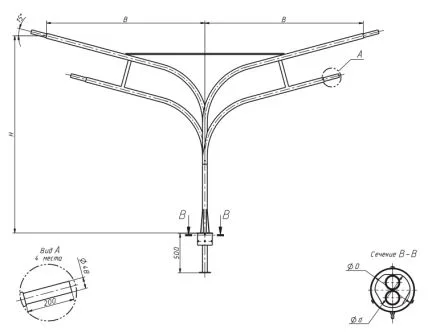
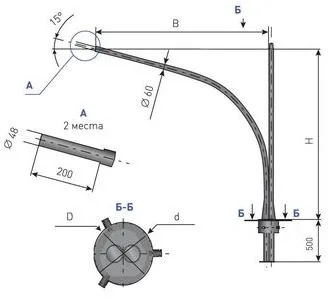
Кронштейн угловой двухрожковый с кольцом КГ2К-0,5-1,0-К110/48-0,048-(180) ГЦ
КГ2К-0,5-1,0-К110/48-0,048-(180) ГЦ
КГ2К-0,5-1,0-К110/48-0,048-(180) ГЦ
Арт: В00008873
2 538.48 ₽
2 417.60 ₽
2 296.72 ₽
СКИДКА 5%
В наличии
Характеристики
СтатусВ наличии
Все характеристики
1
Под заказ: 2-4 недели
20 лет опыта и качества
Выгода для постоянных клиентов
Доставка во все города РФ
Пункты выдачи в каждом городе РФ
Гарантия
5 лет
Розница отп без выходных
Описание
Расшифровка
Технические характеристики
Инструкции
Доставка
Оплата
Отзывы
У товара пока нет описания




















































