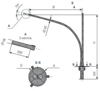
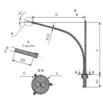
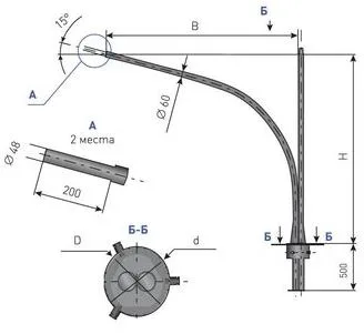
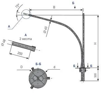
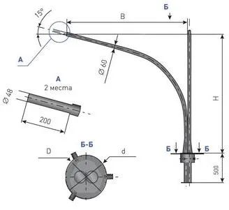
Кронштейн радиусный двухрожковый с обечайкой К2К-2,0-2,0-О230-0,048-(0) ГЦ+ПО
К2К-2,0-2,0-О230-0,048-(0) ГЦ+ПО
Арт: 00-004223
2 652.51 ₽
2 526.20 ₽
2 399.89 ₽
СКИДКА 5%
В наличии
Характеристики
СтатусВ наличии
Все характеристики
1
Под заказ: 2-4 недели
20 лет опыта и качества
Выгода для постоянных клиентов
Доставка во все города РФ
Пункты выдачи в каждом городе РФ
Гарантия
5 лет
Розница отп без выходных
Описание
Расшифровка
Технические характеристики
Инструкции
Доставка
Оплата
Отзывы
У товара пока нет описания





















































