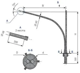
Кронштейн радиусный однорожковый с обечайкой 1.К1-1,5-1,0-О3-ц
1.К1-1,5-1,0-О3-ц
Арт:
6 345.15 ₽
6 043 ₽
5 740.85 ₽
СКИДКА 5%
В наличии
Характеристики
СтатусВ наличии
Все характеристики
1
Под заказ: 2-4 недели
20 лет опыта и качества
Выгода для постоянных клиентов
Доставка во все города РФ
Пункты выдачи в каждом городе РФ
Гарантия
5 лет
Розница отп без выходных
Описание
Расшифровка
Технические характеристики
Инструкции
Доставка
Оплата
Отзывы
У товара пока нет описания




















































