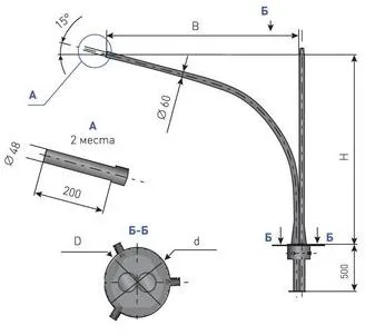
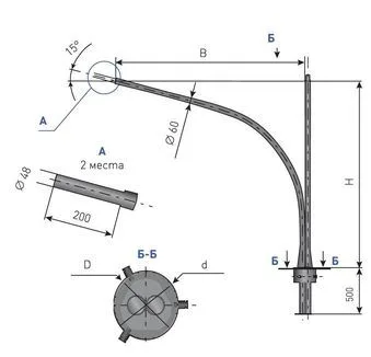
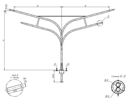
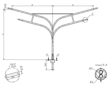
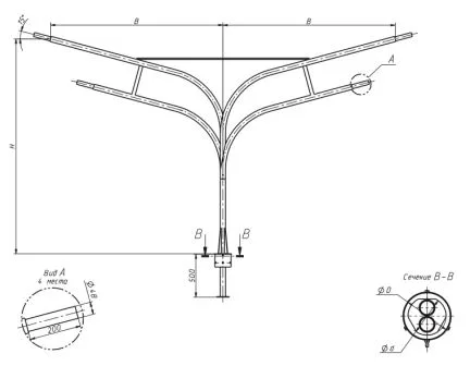
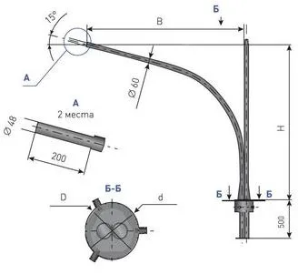
Кронштейн радиусный двухрожковый 1.К2-2,5-2,0-Ф4-ц
1.К2-2,5-2,0-Ф4-ц
Арт:
9 200.10 ₽
8 762 ₽
8 323.90 ₽
СКИДКА 5%
В наличии
Характеристики
СтатусВ наличии
Все характеристики
1
Под заказ: 2-4 недели
20 лет опыта и качества
Выгода для постоянных клиентов
Доставка во все города РФ
Пункты выдачи в каждом городе РФ
Гарантия
5 лет
Розница отп без выходных
Описание
Расшифровка
Технические характеристики
Инструкции
Доставка
Оплата
Отзывы
У товара пока нет описания





















































