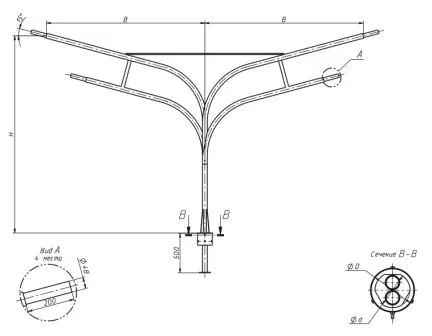
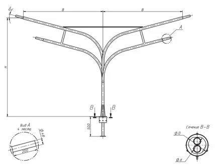
Опора несиловая осветительная ОНО-3,0 (60/96, 190х190х10)
ОНО-3,0 (60/96, 190х190х10)
ОНО-3,0 (60/96, 190х190х10)
Арт:
8 190 ₽
7 800 ₽
7 410 ₽
СКИДКА 5%
В наличии
Характеристики
СтатусВ наличии
Все характеристики
1
Под заказ: 2-4 недели
20 лет опыта и качества
Выгода для постоянных клиентов
Доставка во все города РФ
Пункты выдачи в каждом городе РФ
Гарантия
5 лет
Розница отп без выходных
Описание
Расшифровка
Технические характеристики
Инструкции
Доставка
Оплата
Отзывы
У товара пока нет описания




















































