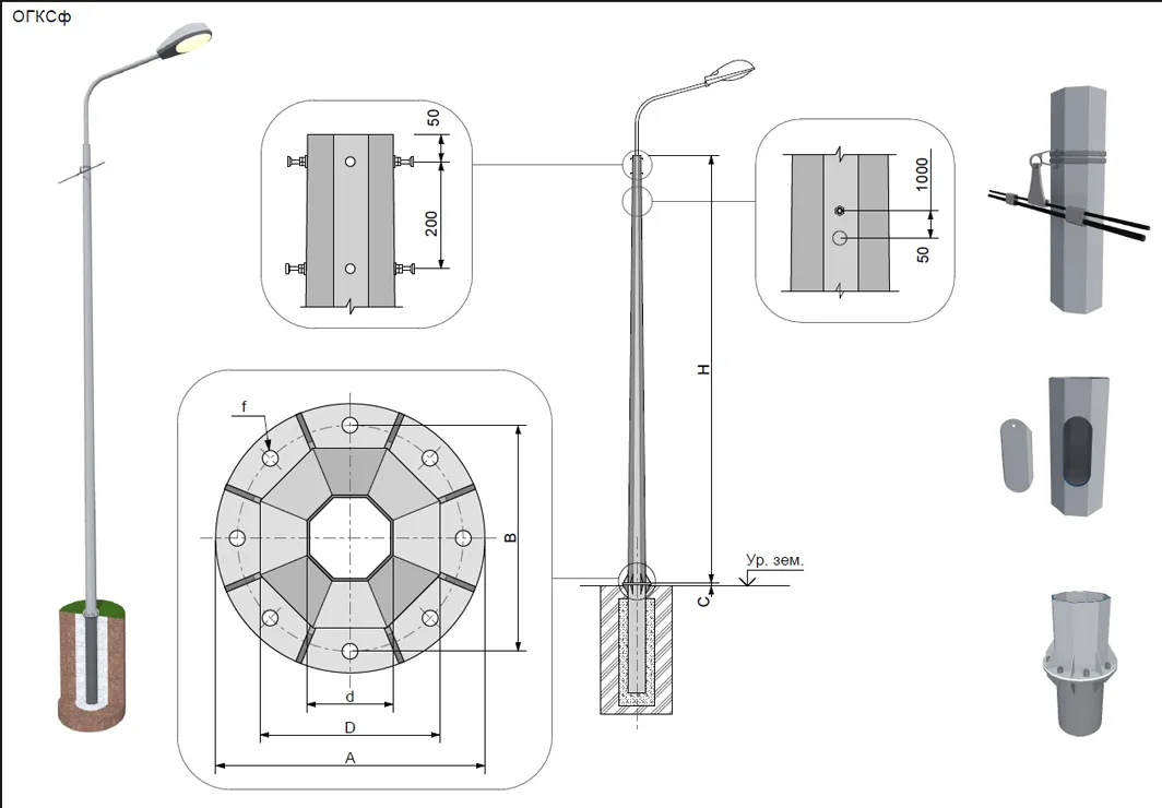
Опора силовая граненая Ясень-1,3-10,0-01-ц фланцевая
Ясень-1,3-10,0-01-ц
Арт:
67 725 ₽
64 500 ₽
61 275 ₽
СКИДКА 5%
В наличии
Характеристики
СтатусВ наличии
Все характеристики
1
Под заказ: 4-5 недель
20 лет опыта и качества
Выгода для постоянных клиентов
Доставка во все города РФ
Пункты выдачи в каждом городе РФ
Гарантия
5 лет
Розница отп без выходных
Описание
Технические характеристики
Инструкции
Доставка
Оплата
Отзывы
У товара пока нет описания





















































