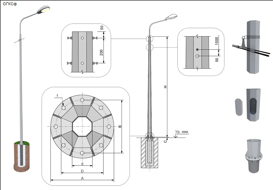
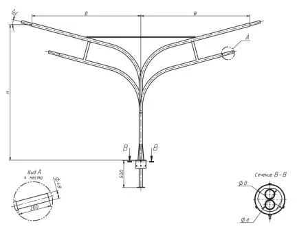
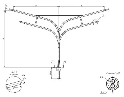
Опора освещения квартальная ОГККВ-7,5П (64/180, 400х400х14)
ОГККВ-7,5П (64/180, 400х400х14)
ОГККВ-7,5П (64/180, 400х400х14)
Арт:
23 205 ₽
22 100 ₽
20 995 ₽
СКИДКА 5%
В наличии
Характеристики
СтатусВ наличии
Все характеристики
1
Под заказ: 4-5 недель
20 лет опыта и качества
Выгода для постоянных клиентов
Доставка во все города РФ
Пункты выдачи в каждом городе РФ
Гарантия
5 лет
Розница отп без выходных
Описание
Технические характеристики
Инструкции
Доставка
Оплата
Отзывы
У товара пока нет описания





















































