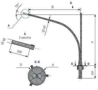
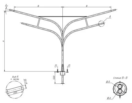
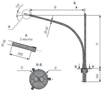
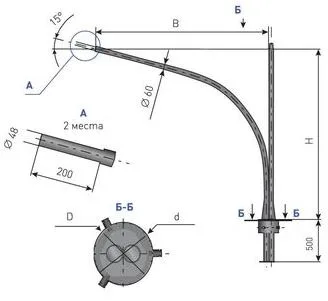
Кронштейн торшерный парковый двухрожковый К51-1,0-1,0-3-1
К51-1,0-1,0-3-1
Арт:
3 303.30 ₽
3 146 ₽
2 988.70 ₽
СКИДКА 5%
В наличии
Характеристики
СтатусВ наличии
Все характеристики
1
Под заказ: 2-4 недели
20 лет опыта и качества
Выгода для постоянных клиентов
Доставка во все города РФ
Пункты выдачи в каждом городе РФ
Гарантия
5 лет
Розница отп без выходных
Описание
Технические характеристики
Инструкции
Доставка
Оплата
Отзывы
У товара пока нет описания


































