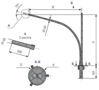
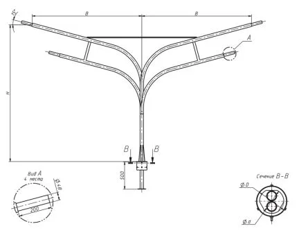
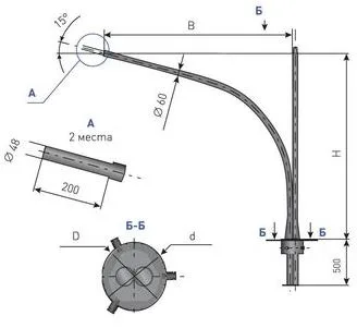
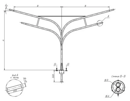
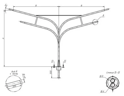
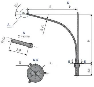
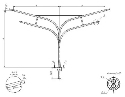
Кронштейн торшерный парковый двухрожковый К51-1,5-0,5-1-1
К51-1,5-0,5-1-1
Арт:
3 467.10 ₽
3 302 ₽
3 136.90 ₽
СКИДКА 5%
В наличии
Характеристики
СтатусВ наличии
Все характеристики
1
Под заказ: 2-4 недели
20 лет опыта и качества
Выгода для постоянных клиентов
Доставка во все города РФ
Пункты выдачи в каждом городе РФ
Гарантия
5 лет
Розница отп без выходных
Описание
Технические характеристики
Инструкции
Доставка
Оплата
Отзывы
У товара пока нет описания


































