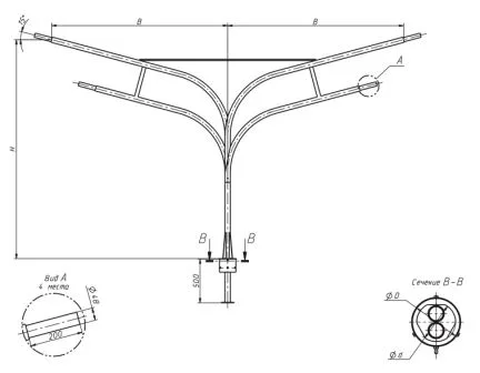
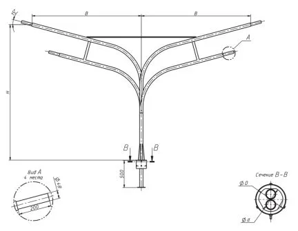
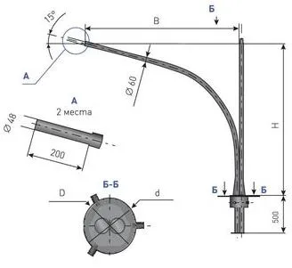
Кронштейн угловой однорожковый накладной 1К1(15°)-1,5-1,5-Н-Тр.48
1К1(15°)-1,5-1,5-Н-Тр.48
Арт:
4 032 ₽
3 840 ₽
3 648 ₽
СКИДКА 5%
В наличии
Характеристики
СтатусВ наличии
Все характеристики
1
Под заказ: 2-4 недели
20 лет опыта и качества
Выгода для постоянных клиентов
Доставка во все города РФ
Пункты выдачи в каждом городе РФ
Гарантия
5 лет
Розница отп без выходных
Описание
Расшифровка
Технические характеристики
Инструкции
Доставка
Оплата
Отзывы
У товара пока нет описания


















































