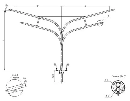
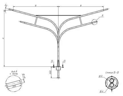
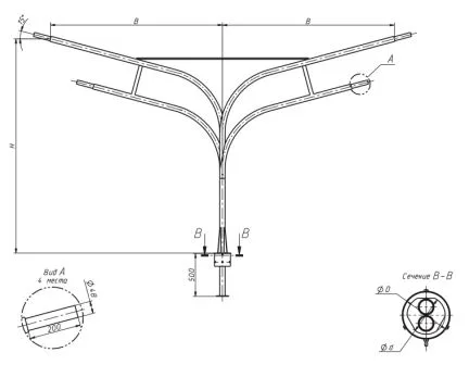
Кронштейн консольный серии 2 "Вектор" ТАНС.41.450.000 (2.К1-1,5-1,5-Ф3-ц)
ТАНС.41.450.000 (2.К1-1,5-1,5-Ф3-ц)
Арт: OE-00488
3 555 ₽
В наличии
Характеристики
СтатусВ наличии
Все характеристики
1
Под заказ: 2-4 недели
20 лет опыта и качества
Выгода для постоянных клиентов
Доставка во все города РФ
Пункты выдачи в каждом городе РФ
Гарантия
5 лет
Розница отп без выходных
Описание
Расшифровка
Технические характеристики
Инструкции
Доставка
Оплата
Отзывы
У товара пока нет описания





















































