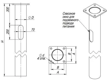
Фундаментная часть для граненых опор ФЧ-2.2-159 (400х400/300)х30 мм
ФЧ-2.2-159 (400х400/300)х30 мм
Арт:
9 261 ₽
8 820 ₽
8 379 ₽
СКИДКА 5%
В наличии
Характеристики
СтатусВ наличии
Все характеристики
1
Под заказ: 3-5 дней
20 лет опыта и качества
Выгода для постоянных клиентов
Доставка во все города РФ
Пункты выдачи в каждом городе РФ
Гарантия
5 лет
Розница отп без выходных
Описание
Расшифровка
Технические характеристики
Инструкции
Доставка
Оплата
Отзывы
У товара пока нет описания





















































