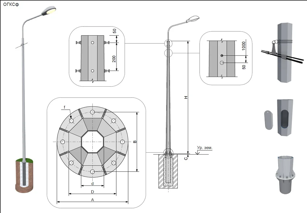
Опора трубчатая несиловая ОТф-6,0-133-108-г.ц
ОТф-6,0-133-108-г.ц
Арт:
8 270.85 ₽
7 877 ₽
7 483.15 ₽
СКИДКА 5%
В наличии
Характеристики
СтатусВ наличии
Все характеристики
1
Под заказ: 2-4 недели
20 лет опыта и качества
Выгода для постоянных клиентов
Доставка во все города РФ
Пункты выдачи в каждом городе РФ
Гарантия
5 лет
Розница отп без выходных
Описание
Расшифровка
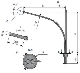
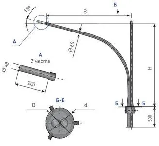
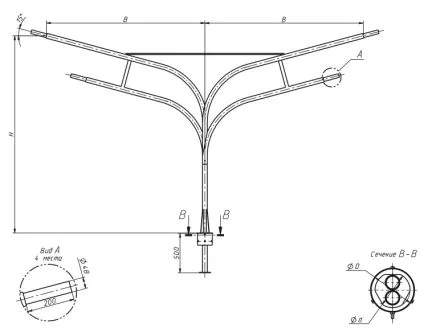
Технические характеристики
Инструкции
Доставка
Оплата
Отзывы
У товара пока нет описания




















































