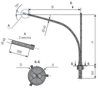
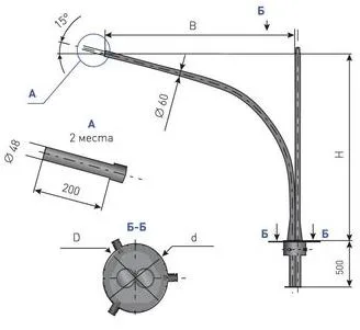
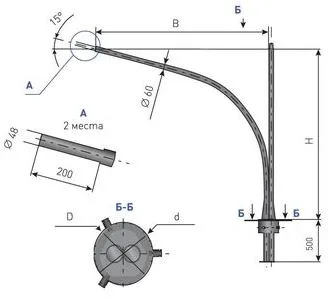
Опора несиловая парковая ОПФ 5,0(d180-3М20+d108-d76)
ОПФ 5,0(d180-3М20+d108-d76)
ОПФ 5,0(d180-3М20+d108-d76)
Арт: ОПФ3v7
16 411.50 ₽
15 630 ₽
14 848.50 ₽
СКИДКА 5%
В наличии
Характеристики
СтатусВ наличии
Все характеристики
1
Под заказ: 2-4 недели
20 лет опыта и качества
Выгода для постоянных клиентов
Доставка во все города РФ
Пункты выдачи в каждом городе РФ
Гарантия
5 лет
Розница отп без выходных
Описание
Расшифровка
Технические характеристики
Инструкции
Доставка
Оплата
Отзывы
У товара пока нет описания




















































