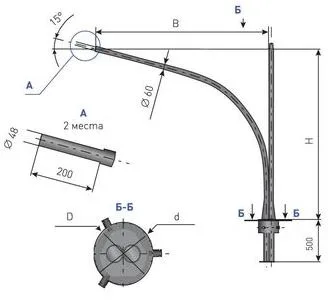
Опора подземная анкерная ОПА3-d120-М8-0,4
ОПА3-d120-М8-0,4
Арт: ОПА3-d120-2
3 108 ₽
2 960 ₽
2 812 ₽
СКИДКА 5%
В наличии
Характеристики
СтатусВ наличии
Все характеристики
1
Под заказ: 3-5 дней
20 лет опыта и качества
Выгода для постоянных клиентов
Доставка во все города РФ
Пункты выдачи в каждом городе РФ
Гарантия
5 лет
Розница отп без выходных
Описание
Технические характеристики
Инструкции
Доставка
Оплата
Отзывы
У товара пока нет описания



































