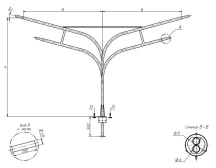
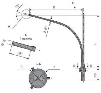
Опора подземная анкерная ОПА4-d290-М12-0,5
ОПА4-d290-М12-0,5
Арт: ОПА4-d290-4
3 643.50 ₽
3 470 ₽
3 296.50 ₽
СКИДКА 5%
В наличии
Характеристики
СтатусВ наличии
Все характеристики
1
Под заказ: 3-5 дней
20 лет опыта и качества
Выгода для постоянных клиентов
Доставка во все города РФ
Пункты выдачи в каждом городе РФ
Гарантия
5 лет
Розница отп без выходных
Описание
Технические характеристики
Инструкции
Доставка
Оплата
Отзывы
У товара пока нет описания



































