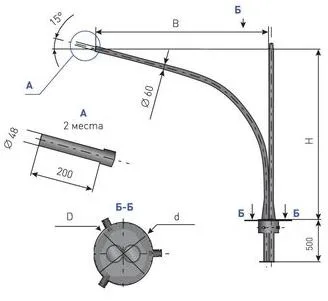
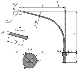
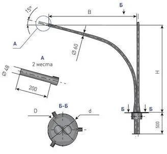
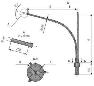
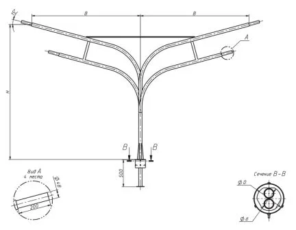
Кронштейн серии 3 "Гранд" ТАНС.42.006.000 (3.К4-0,4-1,5-30.15/180-Ф2-ц)
ТАНС.42.006.000 (3.К4-0,4-1,5-30.15/180-Ф2-ц)
ТАНС.42.006.000 (3.К4-0,4-1,5-30.15/180-Ф2-ц)
Арт: OE-00527
10 146 ₽
В наличии
Характеристики
СтатусВ наличии
Все характеристики
1
Под заказ: 2-4 недели
20 лет опыта и качества
Выгода для постоянных клиентов
Доставка во все города РФ
Пункты выдачи в каждом городе РФ
Гарантия
5 лет
Розница отп без выходных
Описание
Расшифровка
Технические характеристики
Инструкции
Доставка
Оплата
Отзывы
У товара пока нет описания



















































