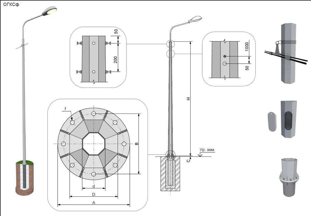
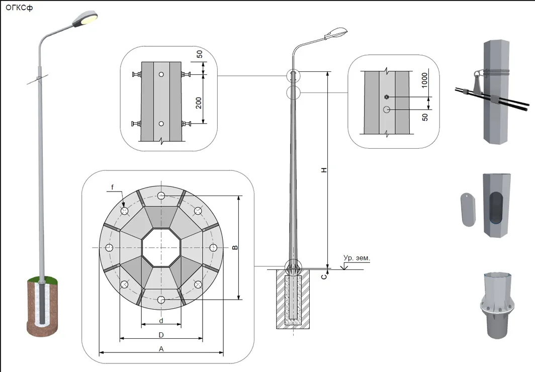
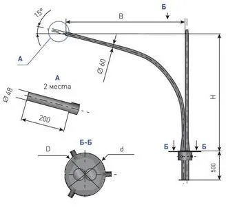
Многогранная прожекторная опора (мачта) МПО-35/3-М(6)-VII
МПО-35/3-М(6)-VII
Арт:
1 417 962 ₽
1 350 440 ₽
1 282 918 ₽
СКИДКА 5%
Под заказ
Характеристики
СтатусПод заказ
Все характеристики
1
Под заказ: 4-6 недель
20 лет опыта и качества
Выгода для постоянных клиентов
Доставка во все города РФ
Пункты выдачи в каждом городе РФ
Гарантия
5 лет
Розница отп без выходных
Описание
Технические характеристики
Инструкции
Доставка
Оплата
Отзывы
У товара пока нет описания




















































