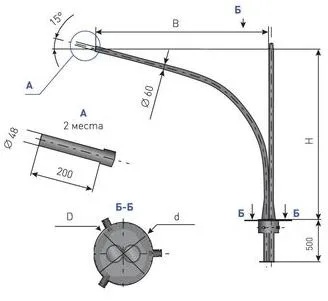
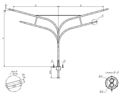
Осветительный комплекс Экслибрис 2 H6 2х50Вт
Экслибрис 2 H6 2х50Вт
Арт:
50 719.20 ₽
48 304 ₽
45 888.80 ₽
СКИДКА 5%
Под заказ
Характеристики
СтатусПод заказ
Все характеристики
1
Под заказ: 4-5 недель
20 лет опыта и качества
Выгода для постоянных клиентов
Доставка во все города РФ
Пункты выдачи в каждом городе РФ
Гарантия
5 лет
Розница отп без выходных
Описание
Технические характеристики
Инструкции
Доставка
Оплата
Отзывы
У товара пока нет описания



















































