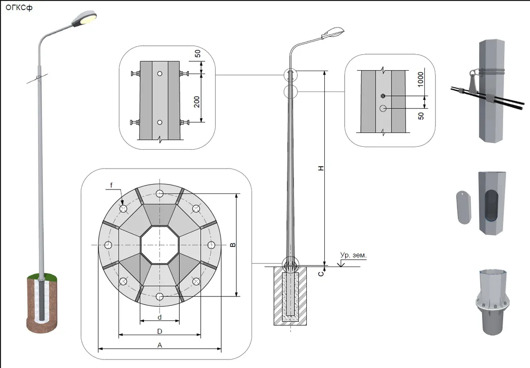
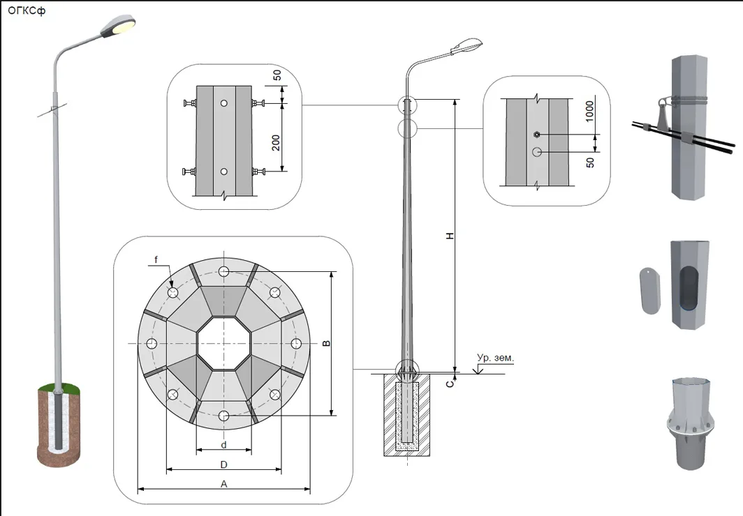
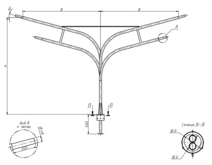
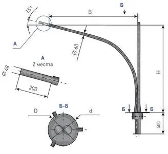
Опора несиловая фланцевая ОСф-0,4-13,0-3,0 (Ф.Б. ф273 l=3000)
ОСф-0,4-13,0-3,0 (Ф.Б. ф273 l=3000)
ОСф-0,4-13,0-3,0 (Ф.Б. ф273 l=3000)
Арт:
50 900 ₽
В наличии
Характеристики
СтатусВ наличии
Все характеристики
1
Под заказ: 4-5 недель
20 лет опыта и качества
Выгода для постоянных клиентов
Доставка во все города РФ
Пункты выдачи в каждом городе РФ
Гарантия
5 лет
Розница отп без выходных
Описание
Технические характеристики
Инструкции
Доставка
Оплата
Отзывы
У товара пока нет описания





















































