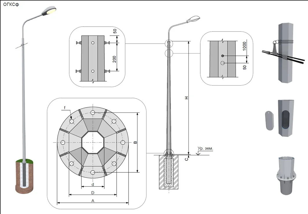
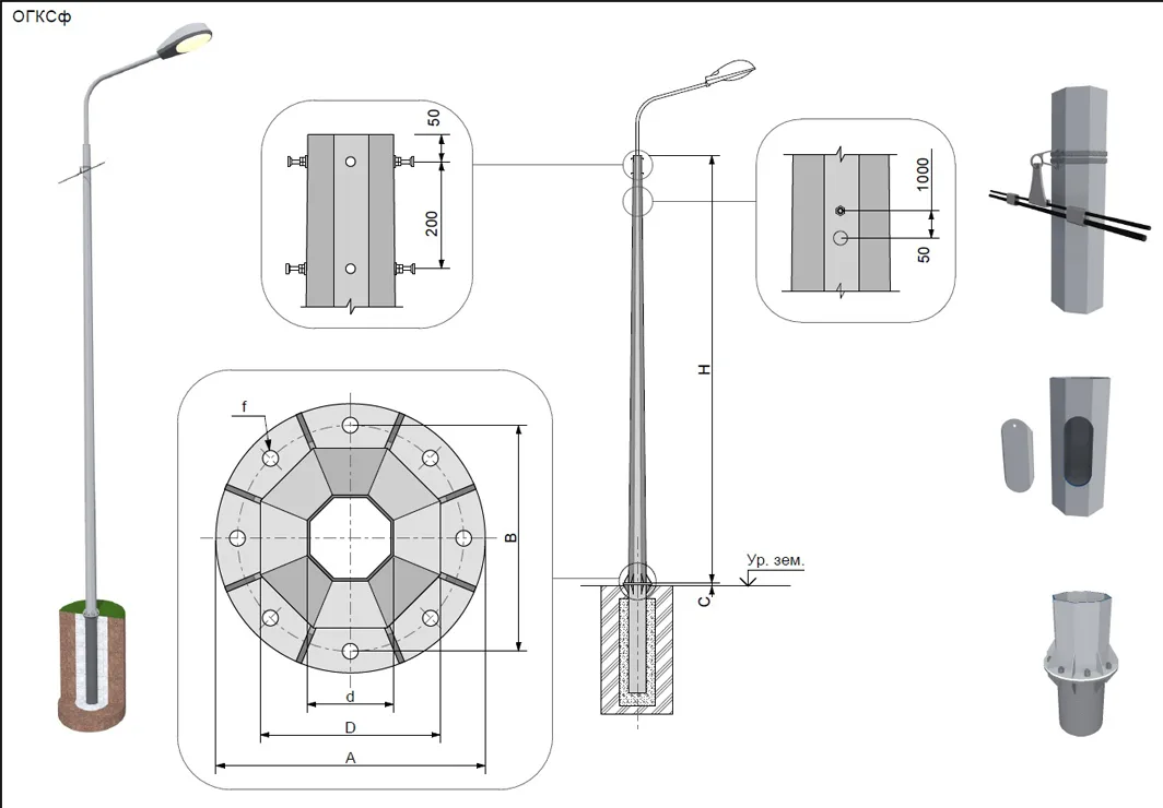
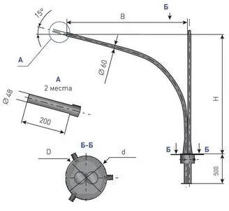
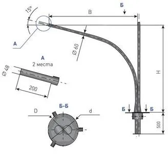
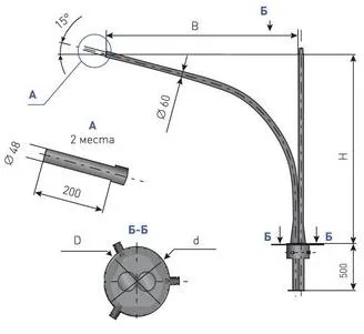
Опора силовая фланцевая граненая ТАНС.11.094.000 (СФГ-700(90)-9,0-02-ц) OE OPORA ENGINEERING
ТАНС.11.094.000 (СФГ-700(90)-9,0-02-ц)
Арт: OE-03184
43 960 ₽
В наличии
Характеристики
СтатусВ наличии
Все характеристики
1
Под заказ: 4-5 недель
20 лет опыта и качества
Выгода для постоянных клиентов
Доставка во все города РФ
Пункты выдачи в каждом городе РФ
Гарантия
5 лет
Розница отп без выходных
Описание
Расшифровка
Технические характеристики
Инструкции
Доставка
Оплата
Отзывы
У товара пока нет описания





















































