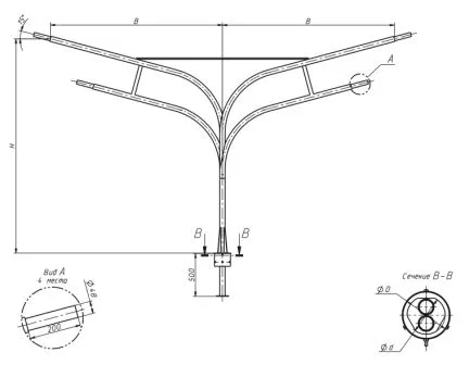
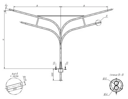
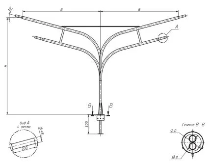
Выносная закладная деталь фундамента ФВ-0,325-3,0-1,4 (Д495-420-12х30)-01-э
ФВ-0,325-3,0-1,4 (Д495-420-12х30)-01-э
ФВ-0,325-3,0-1,4 (Д495-420-12х30)-01-э
Арт: 00-006409
6 471.50 ₽
6 163.33 ₽
5 855.16 ₽
СКИДКА 5%
В наличии
Характеристики
СтатусВ наличии
Все характеристики
1
Под заказ: 3-5 дней
20 лет опыта и качества
Выгода для постоянных клиентов
Доставка во все города РФ
Пункты выдачи в каждом городе РФ
Гарантия
5 лет
Розница отп без выходных
Описание
Технические характеристики
Инструкции
Доставка
Оплата
Отзывы
У товара пока нет описания




















































