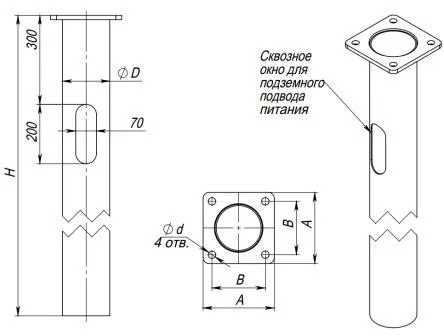
Фундаментная часть для граненых опор ФЧ-1,0-108 (190х190/140)х16 мм
ФЧ-1,0-108 (190х190/140)х16 мм
Арт:
2 110.50 ₽
2 010 ₽
1 909.50 ₽
СКИДКА 5%
В наличии
Характеристики
СтатусВ наличии
Все характеристики
1
Под заказ: 3-5 дней
20 лет опыта и качества
Выгода для постоянных клиентов
Доставка во все города РФ
Пункты выдачи в каждом городе РФ
Гарантия
5 лет
Розница отп без выходных
Описание
Расшифровка
Технические характеристики
Инструкции
Доставка
Оплата
Отзывы
У товара пока нет описания





















































