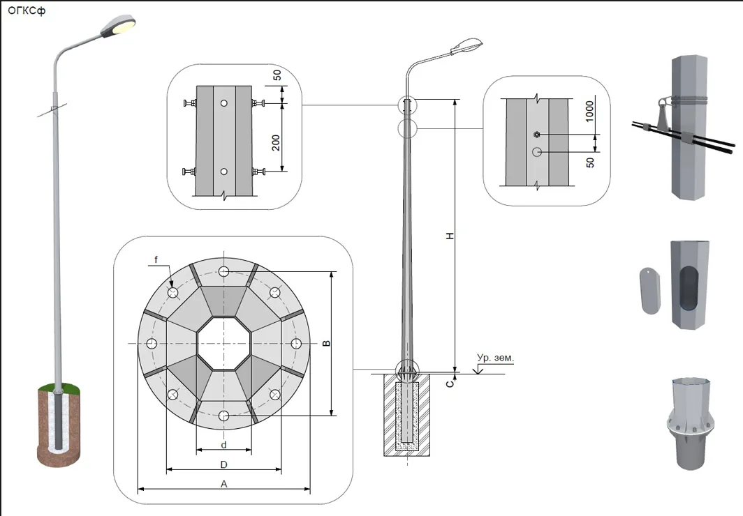
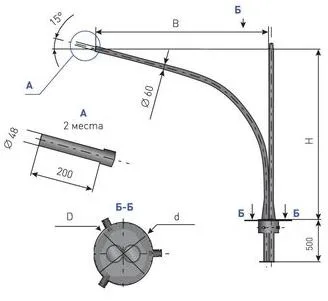
Опора несиловая прямостоечная граненая ТАНС.12.025.000 (НПГ-3/4,0-02-ц) OE OPORA ENGINEERING
ТАНС.12.025.000 (НПГ-3/4,0-02-ц)
ТАНС.12.025.000 (НПГ-3/4,0-02-ц)
Арт: OE-01812
9 521 ₽
В наличии
Характеристики
СтатусВ наличии
Все характеристики
1
Под заказ: 4-5 недель
20 лет опыта и качества
Выгода для постоянных клиентов
Доставка во все города РФ
Пункты выдачи в каждом городе РФ
Гарантия
5 лет
Розница отп без выходных
Описание
Расшифровка
Технические характеристики
Инструкции
Доставка
Оплата
Отзывы
У товара пока нет описания





















































