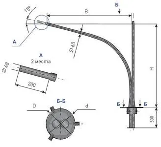
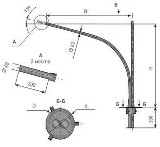
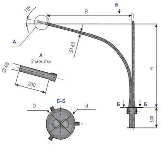
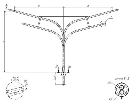
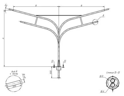
Кронштейн радиусный двухрожковый с кольцом К2К-2,0-2,5-К80-0,057-(15-180) ГЦ
К2К-2,0-2,5-К80-0,057-(15-180) ГЦ
Арт: 00-003533
7 604.42 ₽
7 242.30 ₽
6 880.19 ₽
СКИДКА 5%
В наличии
Характеристики
СтатусВ наличии
Все характеристики
1
Под заказ: 2-4 недели
20 лет опыта и качества
Выгода для постоянных клиентов
Доставка во все города РФ
Пункты выдачи в каждом городе РФ
Гарантия
5 лет
Розница отп без выходных
Описание
Расшифровка
Технические характеристики
Инструкции
Доставка
Оплата
Отзывы
У товара пока нет описания





















































