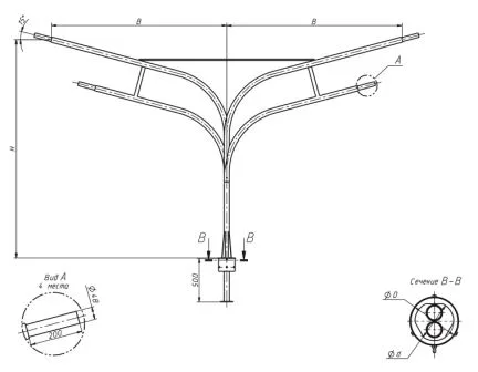
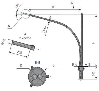
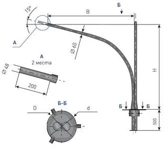
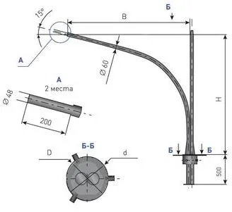
Кронштейн угловой однорожковый с кольцом КГ1К-2,0-2,5-К110/76-0,057 ГЦ
КГ1К-2,0-2,5-К110/76-0,057 ГЦ
Арт: 00-003822
1 905.65 ₽
1 814.90 ₽
1 724.16 ₽
СКИДКА 5%
В наличии
Характеристики
СтатусВ наличии
Все характеристики
1
Под заказ: 2-4 недели
20 лет опыта и качества
Выгода для постоянных клиентов
Доставка во все города РФ
Пункты выдачи в каждом городе РФ
Гарантия
5 лет
Розница отп без выходных
Описание
Расшифровка
Технические характеристики
Инструкции
Доставка
Оплата
Отзывы
У товара пока нет описания





















































