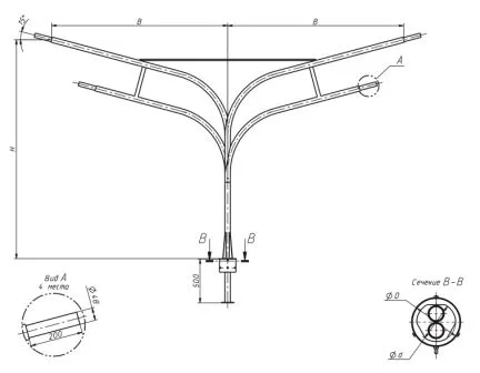
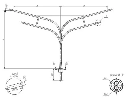
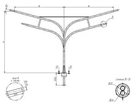
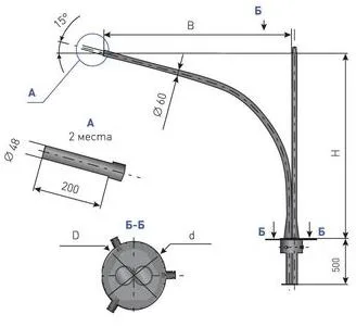
Кронштейн угловой двухрожковый с кольцом КГ2К-0,5-1,5-К110/48-0,048-(0) ГЦ+ПО
КГ2К-0,5-1,5-К110/48-0,048-(0) ГЦ+ПО
КГ2К-0,5-1,5-К110/48-0,048-(0) ГЦ+ПО
Арт:
2 713.41 ₽
2 584.20 ₽
2 454.99 ₽
СКИДКА 5%
В наличии
Характеристики
СтатусВ наличии
Все характеристики
1
Под заказ: 2-4 недели
20 лет опыта и качества
Выгода для постоянных клиентов
Доставка во все города РФ
Пункты выдачи в каждом городе РФ
Гарантия
5 лет
Розница отп без выходных
Описание
Расшифровка
Технические характеристики
Инструкции
Доставка
Оплата
Отзывы
У товара пока нет описания




















































