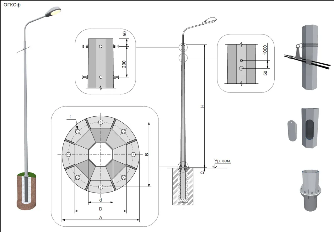
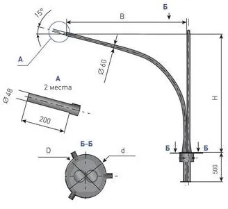
Опора силовая контактной сети ОКККС-0,9-9 (2,0)
ОКККС-0,9-9 (2,0)
Арт:
169 785 ₽
161 700 ₽
153 615 ₽
СКИДКА 5%
В наличии
Характеристики
СтатусВ наличии
Все характеристики
1
Под заказ: 4-5 недель
20 лет опыта и качества
Выгода для постоянных клиентов
Доставка во все города РФ
Пункты выдачи в каждом городе РФ
Гарантия
5 лет
Розница отп без выходных
Описание
Расшифровка
Технические характеристики
Инструкции
Доставка
Оплата
Отзывы
У товара пока нет описания




















































