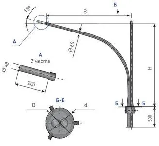
Кронштейн угловой двухрожковый с кольцом КГ2К-1,0-1,0-К165-0,048-(0) ГЦ+ПО
КГ2К-1,0-1,0-К165-0,048-(0) ГЦ+ПО
Арт: 00-004596
2 744.28 ₽
2 613.60 ₽
2 482.92 ₽
СКИДКА 5%
В наличии
Характеристики
СтатусВ наличии
Все характеристики
1
Под заказ: 2-4 недели
20 лет опыта и качества
Выгода для постоянных клиентов
Доставка во все города РФ
Пункты выдачи в каждом городе РФ
Гарантия
5 лет
Розница отп без выходных
Описание
Расшифровка
Технические характеристики
Инструкции
Доставка
Оплата
Отзывы
У товара пока нет описания




















































