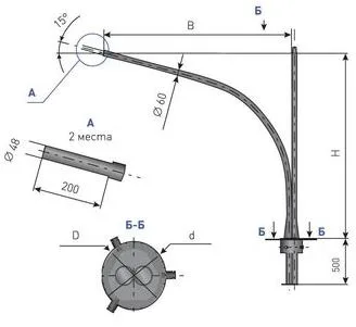
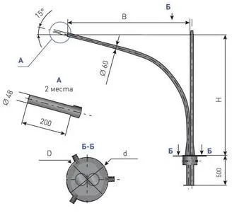
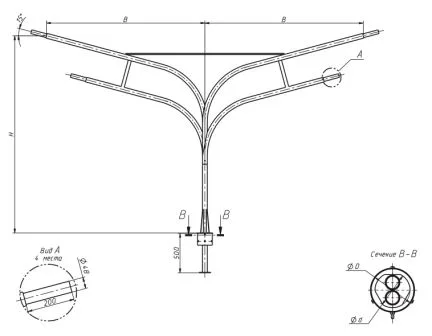
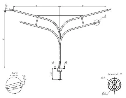
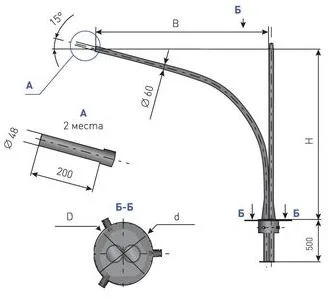
Кронштейн угловой двухрожковый с кольцом КГ2К-1,5-1,5-К110/76-0,048-(180) ГЦ+ПО
КГ2К-1,5-1,5-К110/76-0,048-(180) ГЦ+ПО
КГ2К-1,5-1,5-К110/76-0,048-(180) ГЦ+ПО
Арт: 00-004670
3 068.42 ₽
2 922.30 ₽
2 776.19 ₽
СКИДКА 5%
В наличии
Характеристики
СтатусВ наличии
Все характеристики
1
Под заказ: 2-4 недели
20 лет опыта и качества
Выгода для постоянных клиентов
Доставка во все города РФ
Пункты выдачи в каждом городе РФ
Гарантия
5 лет
Розница отп без выходных
Описание
Расшифровка
Технические характеристики
Инструкции
Доставка
Оплата
Отзывы
У товара пока нет описания




















































