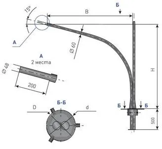
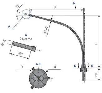
Кронштейн угловой двухрожковый с кольцом КГ2К-1,5-1,5-0,075-0,048-(15-180)
КГ2К-1,5-1,5-0,075-0,048-(15-180)
КГ2К-1,5-1,5-0,075-0,048-(15-180)
Арт:
3 740 ₽
В наличии
Характеристики
СтатусВ наличии
Все характеристики
1
Под заказ: 2-4 недели
20 лет опыта и качества
Выгода для постоянных клиентов
Доставка во все города РФ
Пункты выдачи в каждом городе РФ
Гарантия
5 лет
Розница отп без выходных
Описание
Расшифровка
Технические характеристики
Инструкции
Доставка
Оплата
Отзывы
У товара пока нет описания





















































