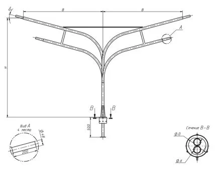
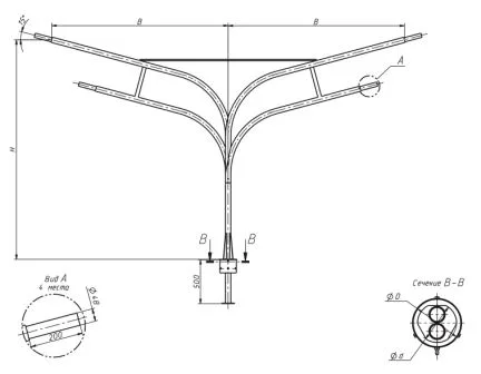
Кронштейн радиусный двухрожковый с обечайкой К2К-1,0-1,5-О145-0,048-(15-180) ГЦ
К2К-1,0-1,5-О145-0,048-(15-180) ГЦ
Арт: В00006825
2 802.28 ₽
2 668.84 ₽
2 535.40 ₽
СКИДКА 5%
В наличии
Характеристики
СтатусВ наличии
Все характеристики
1
Под заказ: 2-4 недели
20 лет опыта и качества
Выгода для постоянных клиентов
Доставка во все города РФ
Пункты выдачи в каждом городе РФ
Гарантия
5 лет
Розница отп без выходных
Описание
Расшифровка
Технические характеристики
Инструкции
Доставка
Оплата
Отзывы
У товара пока нет описания





















































