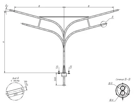
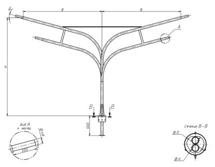
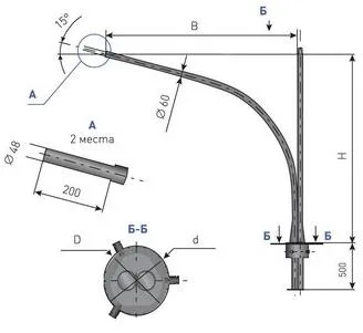
Опора освещения многогранная коническая МК-10Ф-75 (75/168, 250х250х10)
МК-10Ф-75 (75/168, 250х250х10)
Арт:
36 036 ₽
34 320 ₽
32 604 ₽
СКИДКА 5%
В наличии
Характеристики
СтатусВ наличии
Все характеристики
1
Под заказ: 4-5 недель
20 лет опыта и качества
Выгода для постоянных клиентов
Доставка во все города РФ
Пункты выдачи в каждом городе РФ
Гарантия
5 лет
Розница отп без выходных
Описание
Расшифровка
Технические характеристики
Инструкции
Доставка
Оплата
Отзывы
У товара пока нет описания






















































