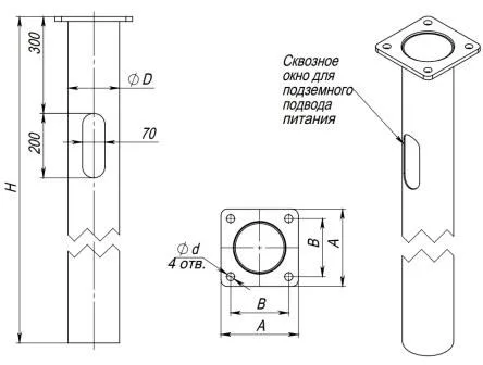
Опора подземная трубчатая ОПТ3-d180-М20-1,0(102)-Э
ОПТ3-d180-М20-1,0(102)-Э
Арт: ОПТ3-d180-56
5 019 ₽
4 780 ₽
4 541 ₽
СКИДКА 5%
В наличии
Характеристики
СтатусВ наличии
Все характеристики
1
Под заказ: 3-5 дней
20 лет опыта и качества
Выгода для постоянных клиентов
Доставка во все города РФ
Пункты выдачи в каждом городе РФ
Гарантия
5 лет
Розница отп без выходных
Описание
Технические характеристики
Инструкции
Доставка
Оплата
Отзывы
У товара пока нет описания





















































