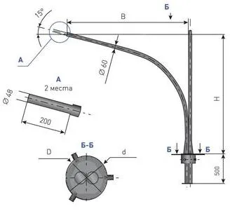
Опора парковая ОД-1-3,8-72 "Бол-1"-цл ТАНС.14.026.000
ОД-1-3,8-72 "Бол-1"-цл ТАНС.14.026.000
Арт: OE-00955
30 047 ₽
В наличии
Характеристики
СтатусВ наличии
Все характеристики
1
Под заказ: 4-5 недель
20 лет опыта и качества
Выгода для постоянных клиентов
Доставка во все города РФ
Пункты выдачи в каждом городе РФ
Гарантия
5 лет
Розница отп без выходных
Описание
Технические характеристики
Инструкции
Доставка
Оплата
Отзывы
У товара пока нет описания

































