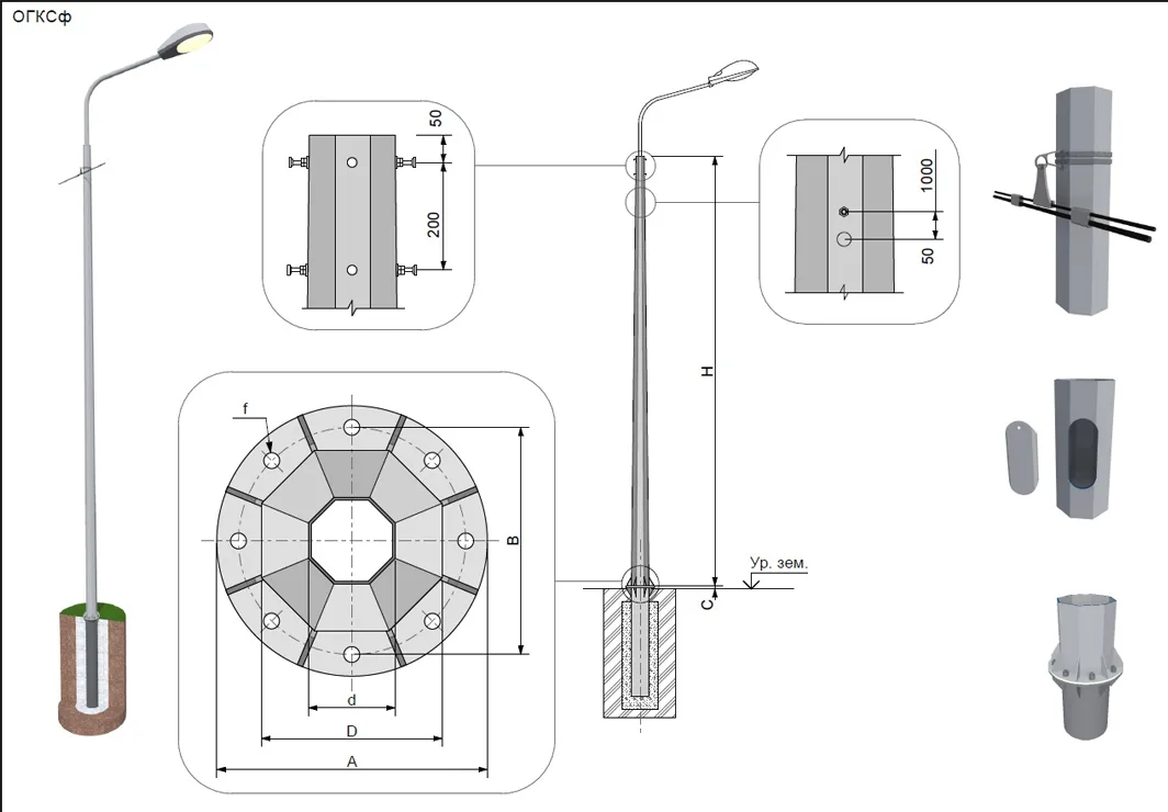
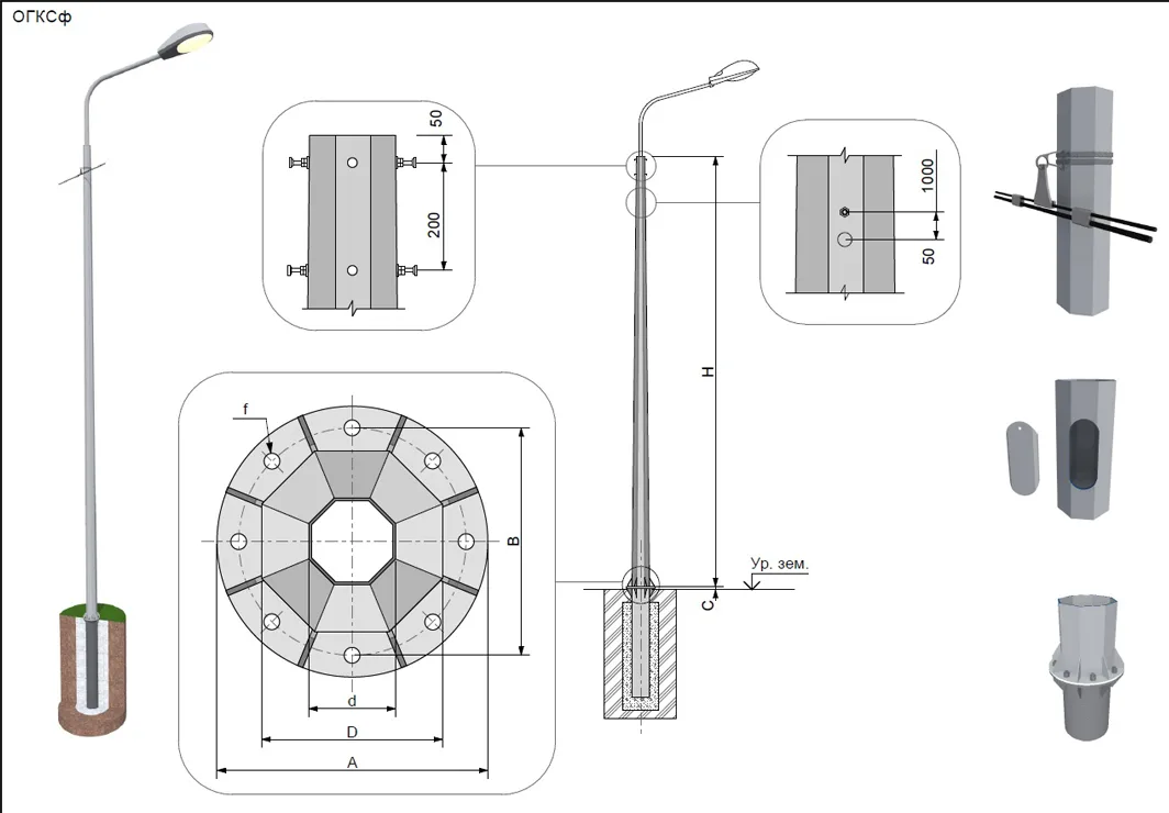
Опора силовая фланцевая граненая ТАНС.11.082.000 (СФГ-700-10,0-01-ц) OE OPORA ENGINEERING
ТАНС.11.082.000 (СФГ-700-10,0-01-ц)
Арт: OE-02826
47 844 ₽
В наличии
Характеристики
СтатусВ наличии
Все характеристики
1
Под заказ: 4-5 недель
20 лет опыта и качества
Выгода для постоянных клиентов
Доставка во все города РФ
Пункты выдачи в каждом городе РФ
Гарантия
5 лет
Розница отп без выходных
Описание
Расшифровка
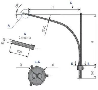
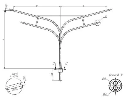
Технические характеристики
Инструкции
Доставка
Оплата
Отзывы
У товара пока нет описания





















































